Private Hot Tub Ski In Ski Out Sleeps 9 | House in Panorama

4 Bedroom House in East Kootenay, Panorama
Welcome to your Panorama Mountain Escape in British Columbia! We are thrilled to introduce our brand-new luxury townhome that offers the perfect blend of sophistication, comfort, and unrivaled convenience.
Why Choose Our Townhome:
-Prime ski-in, ski-out location
-Private hot tub with mountain views
-Luxurious interiors with high-end finishes
-Gourmet kitchen for culinary enthusiasts
-Spacious and comfortable living areas
-Proximity to Panorama Village and resort amenities and hot pools
The space
Location:
Perched slopeside, our townhome provides access to the pristine slopes of Panorama Mountain Resort. Whether you're an biker or avid skier or want to revel in the winter wonderland, you can effortlessly glide from your doorstep to the exhilarating trails surrounding you. It is approx. a 1 minute walk to the silver platter T-bar which brings you up into the mountain. We are approx. 5-7 min walk (3-4 min bike ride) to the hot pools, and restaurants and main village.
Accommodations:
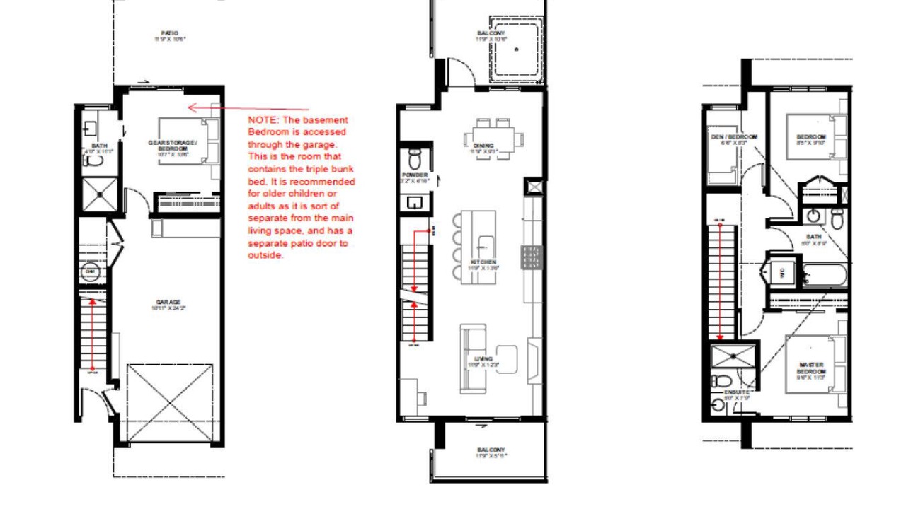
Our home can comfortably sleep up to 7 adults/children and 2 infants, and as per condo bylaws we cannot exceed this occupancy. Step inside our meticulously designed townhome and discover a seamless fusion of modern elegance and cozy alpine charm. With 4 bedrooms, including a sumptuous primary suite, and a layout that maximizes privacy and communal gathering spaces, this home is ideal for families or friends. Revel in the warmth of the fireplace in the open living area or unwind in the private hot tub on the deck as you soak in panoramic views of the surrounding mountains and Toby Creek. Netflix and Disney plus included free of charge!
NOTE - We have access to two other 4 and 5-bedroom townhomes in the same development. If you are a large group, such as a wedding or corporate retreat, please message us directly for pricing and availability as we can handle up to 26 people using all three townhomes.
Amenities:
Indulge in the finer things in life with our top-of-the-line amenities. The gourmet kitchen is a chef's dream, fully equipped with high-end appliances and beautiful countertops, making meal preparation a joy. After a day on the slopes, kick back into the cozy living room and enjoy a movie. The private hot tub lets you relax and rejuvenate under the starlit sky, creating the perfect apres-ski ambiance. You also have access to all Panorama Resort amenities like the outdoor hot pools, village gondola, Valley Trail, tennis and Pickleball. You can enjoy a number of other activities at your fingertips such as Grey Wolf Golf Course (one of the best in Canada), Down Hill Biking, whitewater rafting, side by side and quad tours, snowmobile tours, RK Heli skiing, hiking, biking or head down to Invermere for a nice day on the lake.
Convenience:
Forget the hassle of transportation - our ski-in, ski-out location means you can hit the slopes with ease and return to the comfort of your home without missing a beat. Panorama Village, with its charming shops and restaurants, is just a short stroll away, offering you the convenience of local amenities without sacrificing the tranquility of your mountain retreat. There is a small grocery and convenience store within a 5 min walk.
Embrace the mountain luxury at our Panorama townhome – where the breathtaking beauty of the Rockies meets the pinnacle of comfort. Book your stay now and embark on an unforgettable alpine adventure!
***Photos are a representation of the furnishings in the home. From time to time, we update, replace or move items to make guests more comfortable. We don't reshoot photos after each change, so you may notice minor changes upon arrival. Functionality and comfort will remain the same or better then the pictures shown.
We can help you with your stay. If you have questions about local dining or activities, please feel free to reach out. We also occasionally have an option to stock the unit with Groceries prior to your arrival. Please feel free to reach out at least 10 days prior to your arrival to see if this can be arranged and the cost involved. Also please let us know if you require transportation from Calgary or Kelowna airport and we will do our best to set you up with a shuttle service or recommend a rental company.
Please note that Panorama Village is located at the top of a double lane mountain road in the Rocky Mountains. In the winter you may encounter poor road conditions and heavy snowfall. Please ensure your vehicle is equipped to handle these conditions as there will be no refunds issued due to weather conditions of any kind, unless the road is closed for at least 24 hours.
Remember you are in the mountains and you may encounter wildlife at the property such as bears, deer, cougars, squirrel etc. Please do not approach or feed wildlife and ensure that no garbage is left behind or left outside on the patio spaces. You may also see the odd bug, ant, spider, mosquito, fly etc in the home which is part of the mountain nature, but we do our best to ensure a clean space with these unwanted guests removed.
Welcome to our cozy mountain retreat in Panorama, BC! We want to ensure that your stay is enjoyable and comfortable, so please take a moment to familiarize yourself with our house rules:
-Security Deposit of $750 will be collected before check-in. This is a refundable deposit so long as there is no damage beyond normal wear and tear. Further details in the short-term rental agreement.
-ID will be verified.
-A short-term rental agreement must be signed and agreed to. If you have questions on this, please message in advance before booking.
Parties!
While we all love to party, this home is unfit for anyone looking to party. We want you to have fun on vacation, but we also want to ensure our property and neighbours are respected. There are cameras on the exterior of the building and in the garage, and noise monitors are in the unit to ensure we can avoid noise bylaw issues and unregistered guests. Noise complaints may result in eviction without a refund.
Check-in and Check-out:
Check-in time is at 4:00 PM, and check-out is at 11:00 AM. We may be able to accommodate special requests; please communicate with us in advance.
Quiet Hours:
Respect our neighbours and observe quiet hours between 10:00 PM and 8:00 AM.
No Smoking:
Our home is a smoke-free environment. Please refrain from smoking inside the house or on the deck. If you wish to smoke, please do so in designated outdoor areas and dispose of cigarette butts properly.
Pets:
Unfortunately, we do not allow pets in our rental property. This rule ensures a comfortable environment for guests with allergies. There will be an additional cleaning fee of $500 for anyone found violating this rule, plus additional charges for any damage or stains from the pet.
Hot Tub Use:
Enjoy the private hot tub responsibly. Shower before entering, and please avoid using glassware in the hot tub area. Always secure the hot tub cover when not in use. Please be aware that the deck area may be slippery, so be cautious. Children are not to be unsupervised in the hot tub. If the water level is low, please do not leave it overnight as it can cause damage to the pumps or freeze the hot tub; there will be a hose in the garage to top it up. Do NOT leave the hose attached outside as it will freeze and cause damage to the home.
Kitchen Etiquette:
Feel free to use the kitchen, but please clean up after yourself. Load the dishwasher with dirty dishes and start it before check-out. Dispose of food waste in the designated bins. Accidents happen; if there are broken dishes, please clean them up to prevent injury to your guests and future guests.
Garbage and Recycling:
Properly dispose of garbage and recyclables in the provided bins in the parking lot area.
Damages and Accidents:
Report any damages or accidents as soon as they occur. We understand that accidents happen, but timely reporting allows us to address the issue promptly. This includes but is not limited to - broken dishes, scratches on the floors and walls, stains on the sheets, floors or furniture, or anything else that would not be regular wear and tear.
Maximum Occupancy:
The maximum occupancy for our rental property is 9. Please do not exceed this limit, as it ensures the safety and comfort of all guests. If this limit is exceeded, we will violate our short-term rental license, which puts us at risk and you will be asked to evacuate the property immediately with no refund.
Parking:
Park only in designated areas. Please respect our neighbours' parking spaces and follow any additional parking guidelines provided. One stall is in the driveway, and additional guest parking is available in the complex or on the street. I recommend the Panorama overflow lot for any additional vehicles and walking back to the condo or getting a ride.
Wi-Fi Usage:
Use the provided Wi-Fi responsibly and only for legal activities. Do not download or stream illegal content.
Emergency Procedures:
Familiarize yourself with emergency procedures, including the location of fire extinguishers and emergency exits.
By booking our rental, you agree to abide by these house rules. Failure to comply may result in additional charges or eviction. We appreciate your cooperation and hope you have a wonderful stay in Panorama, BC!
Private Hot Tub Ski In Ski Out Sleeps 9 is located in East Kootenay. Private Hot Tub Ski In Ski Out Sleeps 9 provides accommodation, featuring Kitchen, Air Conditioner, Parking, among other amenities. This House features Kitchen, Air Conditioner, Parking, to make your stay a comfortable one.
Private Hot Tub Ski In Ski Out Sleeps 9 has 4 Bedrooms , 3 Bathrooms, and max occupancy of 9 people. The minimum rental for this property is 1 nights, but this can change depending on the season you plan on staying. Previous guests have given good rated it, and VRBO labeled it a top-rated House because of the excellent services rendered by the owner or manager of this House, and has consistently provided great experiences for their guests. Most families or guests that use it recommend it to their friends and some of them are repeat guests. House has a friendly neighborhood, and the East Kootenay has interesting places to visit. If you want to learn more about the House in East Kootenay, such as places to visit and things to do nearby, you can check below to learn more.
Amenities
Facility Overview
-
Heating
-
Air conditioning
-
3+ bathrooms
-
Hair dryer
-
Sofa bed
-
Bed sheets provided
-
4 bedrooms
-
Dining table
-
Fireplace
-
Cookware/dishes/utensils
-
Oven
-
Coffee/tea maker
-
Microwave
-
Dishwasher
-
Refrigerator
-
Toaster
-
Stovetop
-
Laundry facilities
-
Washing machine and dryer
-
Near the beach
-
Electric car charging station on site
-
Onsite parking options include a garage
-
Onsite parking
-
No pets allowed
-
Designated smoking areas
-
TV
-
English
-
In the mountains
-
On the waterfront
-
Highchair
-
Travel crib
-
Children's books
-
Iron/ironing board
-
WiFi available
-
Balcony
-
Barbecue grill
-
Garden
-
First aid kit
-
Fire extinguisher
-
Smoke detector installed (host has indicated there is a smoke detector on the property)
-
Carbon monoxide detector installed (host has indicated there is a carbon monoxide detector on the property)
-
Ski-in/ski-out access
-
Sauna
Policies
Extra-person charges may apply and vary depending on property policy government-issued photo identification and a credit card, debit card, or cash deposit may be required at check-in for incidental charges host has indicated there is a carbon monoxide detector on the property host has indicated there is a smoke detector on the property onsite parties or group events are strictly prohibited property registration number h675302566 safety features at this property include a fire extinguisher and a first aid kit special requests are subject to availability upon check-in and may incur additional charges; special requests cannot be guaranteed this property is managed through our partner, vrbo. you will receive an email from vrbo with a link to a vrbo account, where you can change or cancel your reservation